Linen Closet Dimensions : Linen Closet Organization Ideas How To Organize Your Linen Closet : The comfortable recommended depth of a closet is 24 (61 cm), but closet depths as narrow as 20 (50.8 cm) can be used if desired.

Linen Closet Dimensions : Linen Closet Organization Ideas How To Organize Your Linen Closet : The comfortable recommended depth of a closet is 24 (61 cm), but closet depths as narrow as 20 (50.8 cm) can be used if desired.. Shelves in a linen closet will be hung at the standard height, starting at 84 inches high and spaced 15 inches apart. It's best if the linen closet is located in a cool, dry place, but if it's inside your bathroom, ventilated wire shelves are a good choice to keep humidity at bay. Replace your linens every twoto three years and donate theold linens you no longer use. Typically they are between 30 to 36 inches wide. Closet depths are based on the dimensions of various common clothing elements such as shoes, folded clothes, and shirts hung on hangers.

Über uns erhalten sie ihre stickerei schnell und einfach Store your ironing board vertically. From there, the width increases every two inches up to a width of 36 inches. There are two types, half hanging height for hanging shirts, tops, most skirts and folded trousers and full hanging height for hanging dresses, long coats and i have also seen bed linen stored on hangers in a full hanging height space. It would be easy enough to find a way to fold towels so that they are no more than 12 inches deep.

How To Build A Corner Linen Cabinet Better Homes Gardens
How To Build A Corner Linen Cabinet Better Homes Gardens from static.onecms.io
7 years ago my hall bathroom linen closet inside demension is 37 inches wide by 26 inches deep. The standard dimensions for this bedroom closet should be at least 4 feet wide by 4 feet deep. The size of closets is based on the size of the items that will be stored there. A 96 wide closet should have a centered 72 wide door opening) • storage on walls above 96 is very diffi cult to access. So let's started on walk in closet dimensions with hanging space. Shelf depths of 12 (30.5 cm) should be used for shoes and smaller clothing elements. The narrowest that the standard size falls into is a width of 28 inches. No matter where you choose tostore your linens, it's essentialto keep them organized.

Shelf board is easily cut to any dimension, so planning a closet around the size of the shelving is not necessarily a good thing.

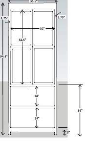
It has 5 shelves in it but could easily have 6. Get it as soon as thu, apr 22. The comfortable recommended depth of a closet is 24 (61 cm), but closet depths as narrow as 20 (50.8 cm) can be used if desired. The narrowest that the standard size falls into is a width of 28 inches. Like many of the other types of closet doors we've looked at, linen closets actually have varying widths. Check the inside dimensions of the cabinet. For exceptionally tall people, increase the height to keep long clothes off the floor. Closet depths are based on the dimensions of various common clothing elements such as shoes, folded clothes, and shirts hung on hangers. Typically they are between 30 to 36 inches wide. The standard dimensions for this bedroom closet should be at least 4 feet wide by 4 feet deep. Keep your linen sets together. Shelves in a linen closet will be hung at the standard height, starting at 84 inches high and spaced 15 inches apart. Shelf board is easily cut to any dimension, so planning a closet around the size of the shelving is not necessarily a good thing.

A wardrobe closet needs to be at least 14 inches deep to be functional for linens. Linen closet dimensions november 27, 2018 lukman foto 0 linen closet anization ideas designing a linen closet howstuffworks closet door sizes most por how to anize your linen closet linen cabi shaker ash 24 x 96 linen cabi The narrowest that the standard size falls into is a width of 28 inches. Linen cabinet types and sizes there are a variety of freestanding linen cabinets that work well in the bathroom space. Shelves in a linen closet will be hung at the standard height, starting at 84 inches high and spaced 15 inches apart.

Linen Closet Typical Dimensions Linen Closet Closet Remodel Linen Closet Storage
Linen Closet Typical Dimensions Linen Closet Closet Remodel Linen Closet Storage from i.pinimg.com
Railey 11.8 w x 72.6 h x 11.22 d linen cabinet for homes with tiny bathrooms, this compact linen cabinet tower is the storage solution you need. The standard dimensions for this bedroom closet should be at least 4 feet wide by 4 feet deep. Here are some tips to makethe most of your linen closet: Deep drawers are consistent with standard closet depths 24 (61 cm). This one fills the width of an empty wall, stopping just shy of the upper window in height. Is thier such thing as a minimum standard for a. There are two types, half hanging height for hanging shirts, tops, most skirts and folded trousers and full hanging height for hanging dresses, long coats and i have also seen bed linen stored on hangers in a full hanging height space. 4.4 out of 5 stars.

Like many of the other types of closet doors we've looked at, linen closets actually have varying widths.

Get it as soon as thu, apr 22. From there, the width increases every two inches up to a width of 36 inches. A typical linen closet is usually 30 to 36 inches wide. (stow these items on a high shelf, so children cannot get to. Is thier such thing as a minimum standard for a. From the floor—take the measurement from the bottom of the shelf (that puts the pole at about 64 in. Closet depths are based on the dimensions of various common clothing elements such as shoes, folded clothes, and shirts hung on hangers. No matter where you choose tostore your linens, it's essentialto keep them organized. Adjustable shelves should be placed a minimum of 10 to 12 inches apart to allow for airflow above a stack. Shelf board is easily cut to any dimension, so planning a closet around the size of the shelving is not necessarily a good thing. Shelf board is easily cut to any dimension, so planning a closet around the size of the shelving is not necessarily a good thing. It's best if the linen closet is located in a cool, dry place, but if it's inside your bathroom, ventilated wire shelves are a good choice to keep humidity at bay. Linen cabinet types and sizes there are a variety of freestanding linen cabinets that work well in the bathroom space.

Closet depths are based on the dimensions of various common clothing elements such as shoes, folded clothes, and shirts hung on hangers. Closet depths are based on the dimensions of various common clothing elements such as shoes, folded clothes, and shirts hung on hangers. A standard linen closet is around 15 inches to 24 inches deep. Here are some tips to makethe most of your linen closet: A 96 wide closet should have a centered 72 wide door opening) • storage on walls above 96 is very diffi cult to access.

How To Build A Corner Linen Cabinet Better Homes Gardens
How To Build A Corner Linen Cabinet Better Homes Gardens from static.onecms.io
Free shipping on orders over $25 shipped by amazon. It is very easy to access because the door is 30 inches wide. Because plywood thickness vary, you might have to slightly adjust the shelf dimensions. So let's started on walk in closet dimensions with hanging space. Closet depths are based on the dimensions of various common clothing elements such as shoes, folded clothes, and shirts hung on hangers. How to expertly organize your linen closet. Get it as soon as thu, apr 22. Many homes have multiple bed sizes, which can make finding sheets difficult if they're not ordered accordingly.

Railey 11.8 w x 72.6 h x 11.22 d linen cabinet for homes with tiny bathrooms, this compact linen cabinet tower is the storage solution you need.

It is very easy to access because the door is 30 inches wide. Shelf board is easily cut to any dimension, so planning a closet around the size of the shelving is not necessarily a good thing. Get it as soon as thu, apr 22. Linen cabinet types and sizes there are a variety of freestanding linen cabinets that work well in the bathroom space. 4.4 out of 5 stars. The standard dimensions for this bedroom closet should be at least 4 feet wide by 4 feet deep. Our new linen closet is 21 inches deep, which gives me about 18inches of usable space inside the drawers, and a little bit more space for the towel storage area. Closet depths are based on the dimensions of various common clothing elements such as shoes, folded clothes, and shirts hung on hangers. Shelves in a linen closet will be hung at the standard height, starting at 84 inches high and spaced 15 inches apart. A typical linen closet is usually 30 to 36 inches wide. Closet depths are based on the dimensions of various common clothing elements such as shoes, folded clothes, and shirts hung on hangers. Many homes have multiple bed sizes, which can make finding sheets difficult if they're not ordered accordingly. For anything other than drawers, 21 inches is a little too deep.

Posting Komentar

Lebih baru Lebih lama
banner